Air Box tipo 1,0
Preis auf Anfrage oder nach Anmeldung
más gastos de envío; más IVA
Caja para ventilación y secado de grano y semillas.
Air-Box sin cono! El cono debe solicitarse por separado!
Air-Box se suministra en piezas individuales y debe montarse por el cliente de forma independiente!
Transición de ventilación opcional para 300mm manguera en espiral Número de artículo: 4000575
Ventajas:
- Ventilación y secado con baja pérdida de presión
- Almacenamiento de granos y semillas
- Contenido: 1,0m³
- 2 cajas llenas apilables con ventilación simultánea
- El cono disponible de metal expandido (0,8mm), placas perforadas (1,5mm) o sin perforar
- Salida centrada
- Sin ventilador ni transición
- Hecho de chapa de acero galvanizado
- Transporte con montacargas
- El marco (UG) puede solicitarlo por separado
TS = Cono hecha de metal expandido
TL = Cono hecha de placas perforadas
TU = Cono sin perforar
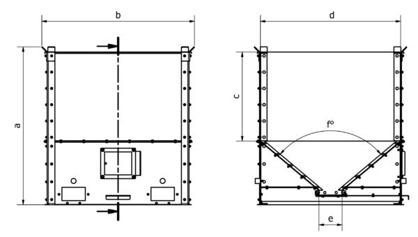
| tipo | Número del artículo | Antiguo número de artículo | a | b | c | d | e | f |
|---|---|---|---|---|---|---|---|---|
| Air Box 1,0 | 1001605 | 4009099016024 | 1245 mm | 1200 mm | 700 mm | 1103 mm | 183 mm | 100° |
| TS | 1001606 | 4009099016025 | ||||||
| TL | 1001607 | 4009099016026 | ||||||
| TU | 1001608 | 4009099016027 | ||||||
| UG 1,0m³ | 4009098015772 | 1200 mm | 1200 mm | 1250 mm |
Bedienungsanleitungen finden Sie unter folgendem Link: Instrucciones de uso
Čeština











